Закладная деталь фундамента ЗДФ-0,219-2,0 (Д395-310-8х25)-01 | В00000225 Пересвет
Товарные предложения:
| Деталь фундамента закладная ЗДФ-0.219-2.0(Д395-310-8х25)-01 (для ОСф/ОГСф-0.4) Пересвет В00000225 | 30.01.2026 | 103 шт. | 18 076,08 ₽ | шт. | от 1 дня |
Описание
Характеристики
Сертификаты
Сопутствующие товары
Аналоги
Описание
Закладная деталь фундамента ЗДФ-0,219-2,0 (Д395-310-8х25)-01 для ОСф/ОГСф-0.4 от бренда Пересвет предназначена для надёжного крепления фланцевых опор в бетонном основании. Эта деталь обеспечивает устойчивую установку оборудования при подземной прокладке кабельных трасс, особенно там, где требуется высокая механическая прочность и долговечность.
Назначение и область применения
Закладная деталь фундамента ЗДФ-0,219-2,0 (Д395-310-8х25)-01 для ОСф/ОГСф-0.4 используется для монтажа фланцевых опор на подземных участках кабельных линий. Она служит основой для крепления опорных конструкций, таких как столбы или опоры с фланцами, которые затем поддерживают кабели или оборудование. Применяется в энергетике, связи, транспорте и других отраслях, где требуются стационарные подземные точки крепления.
Технические характеристики
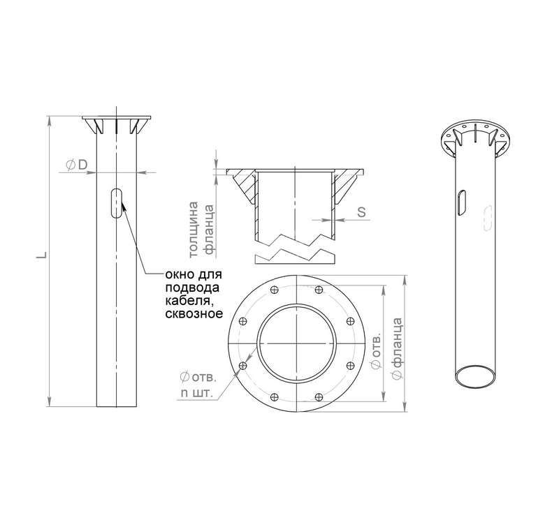
- Диаметр: 219 мм - внутренний проход для пропуска кабелей или труб через основание;
- Подземная часть: 2 м - глубина погружения в грунт для обеспечения устойчивости;
- Материал: сталь - обеспечивает высокую прочность и устойчивость к нагрузкам;
- Покрытие: эмаль - защищает поверхность от коррозии в условиях повышенной влажности;
- Тип изделия: закладная деталь - предназначена для заливки в бетонную массу во время устройства фундамента;
- Способ монтажа: вкапываемый - устанавливается до заливки бетона, фиксируется в опалубке;
- Рекомендованный проектный ассортимент: да - соответствует типовым решениям для систем ОСф/ОГСф-0.4.
Совместимость и монтаж
Закладная деталь фундамента ЗДФ-0,219-2,0 (Д395-310-8х25)-01 для ОСф/ОГСф-0.4 совместима с фланцевыми опорами стандарта ОСф/ОГСф-0.4. Для правильной установки необходимо:
- Установить деталь вертикально в опалубку перед заливкой бетона;
- Зафиксировать её положение с помощью распорок или сварных элементов, чтобы избежать смещения;
- Обеспечить плотное заполнение бетоном вокруг корпуса, исключая воздушные полости;
- Не допускать попадания грязи или воды внутрь трубы до окончательной сборки.
После набора бетоном прочности на опору устанавливаются фланцы, которые крепятся болтами к выступающей части детали.
Безопасность и стандарты
Изделие изготовлено в соответствии с требованиями к закладным деталям для подземных сооружений. Несмотря на отсутствие явного указания ГОСТ, применение в проектах типа ОСф/ОГСф-0.4 говорит о соответствии нормативам для силовых и коммуникационных сетей. Материал - углеродистая сталь - соответствует требованиям к металлическим изделиям в агрессивных средах.
Преимущества
- Высокая механическая прочность благодаря стальной конструкции и достаточной толщине стенок;
- Долговечность покрытия эмалью - снижает риск коррозии даже при длительном контакте с влагой;
- Чёткая привязка к стандартному ассортименту ОСф/ОГСф-0.4 - минимизирует риски несовместимости при заказе комплектующих;
- Простота монтажа в процессе бетонирования - не требует дополнительных устройств или сложных технологий.
Ограничения применения
- Не предназначен для использования в зонах с высокой химической активностью почвы - эмалевое покрытие не обеспечивает защиты против агрессивных веществ;
- Не рекомендуется для применения в районах с вечной мерзлотой или частыми подвижками грунта - возможна деформация или сдвиг детали;
- Не следует использовать как самостоятельный кабельный канал - внутри трубы нет внутренней изоляции или защиты от перегрева;
- Не подходит для поверхностного монтажа - требует обязательной заливки в бетон на всю глубину 2 метра.
Примеры использования
- Установка опор для кабельных линий 0,4 кВ в городских парках или на автодорогах;
- Фиксация опор освещения в местах с ограниченным доступом для наземных анкеров;
- Монтаж точек подключения для телекоммуникационных кабелей в подземных каналах;
- Использование в качестве базовой детали для крепления щитов управления рядом с подземными камерами.
Практические советы
- Проверьте диаметр 219 мм перед заказом фланца - он должен точно соответствовать внутреннему проходу детали;
- При работе в песчаных или сыпучих грунтах используйте временные крепления для сохранения вертикальности во время заливки;
- Не забудьте оставить свободный выход трубы выше уровня земли - он нужен для последующего крепления опоры;
- При необходимости можно дополнительно обработать торец трубы антикоррозийным составом после монтажа;
- Артикул в00000225 от Пересвет имеет одинаковые параметры в сериях, поэтому замена возможна при наличии аналогичного исполнения.
Характеристики
Производитель/Бренд
Пересвет
Артикул
в00000225
Глубина
395 мм.
Ширина
395 мм.
Высота
2500 мм.
Вес
97.0 кг.
Диаметр
219 мм
Материал
Сталь
Покрытие
Эмаль
Тип изделия
Деталь закладная
Способ монтажа
Вкапываемый
Подземная часть
2 м
Сфера применения
Монтаж фланцевых опор
Способ подводки кабеля
Подземный
Рекомендованный проектный ассортимент
Да
Сертификаты
AM03_N00881
101.RU.02721
Сопутствующие товары (4)
![]() | Опора ОГСф-0,4-9 (Д395-310-8х25)-01-ц | В00000224 Пересвет | 35 шт. | 46 321,44 ₽ | шт. | от 1 дня |
![]() | Опора ОГСф-0,4-10 (Д395-310-8х25)-01-ц | В00000502 Пересвет | 2 шт. | 49 624,08 ₽ | шт. | от 1 дня |
![]() | Комплект нижних метизов для ОСФ 0.4 Пересвет В00005081 | 64 шт. | 3 104,53 ₽ | шт. | от 1 дня |
![]() | Кронштейн К2К-1,5-1,5-К110/48-0,048-(15-180)-ц | В00003175 Пересвет | 506 шт. | 7 638,84 ₽ | шт. | от 1 дня |
Аналоги (1)
![]() | Закладная деталь фундамента ТАНС.31.001.000 (ЗФ-30/4/К300-2,0-б) | OE-00041 OPORA ENGINEERING GALAD | 1 шт. | 16 661,03 ₽ | шт. | от 1 дня |






